Muzeum Wyspiańskiego
Muzeum Narodowe w Krakowie, Aleja 3 Maja, Kraków, Polska
Typ
konkurs
Powierzchnia
7 584
Piętra
7
Zamawiający
Muzeum Narodowe w Krakowie / SARP
Orientacyjny koszt
-
Status
konkurs
Data projektu/budowy
2019
Lokalizacja
Muzeum Narodowe w Krakowie, Aleja 3 Maja, Kraków, Polska
Opis
Podstawowym założeniem koncepcji planistycznej stanowi odsunięcie budynku od Gmachu Głównego
i stworzenie placu z urządzoną zielenią jako kontynuacji istniejącego placu przed budynkiem MNK. W ten sposób osiągnięto ogólnodostępną przestrzeń, która otwiera perspektywę na boczną elewację Gmachu Głównego eksponując jego modernistyczną wartość architektoniczną.
Wjazd na teren kompleksu muzealnego odbywać się będzie poprzez ul. Oleandry i następnie ul. Kadrówki.
W koncepcji zaproponowano wjazd do garażu podziemnego w narożniku działki od strony DS Żaczek. Zjazd nie zakłóca przestrzeni zielonego placu pomiędzy Gmachem Głównym a Muzeum Wyspiańskiego, co stwarza możliwość jego swobodnej aranżacji.
Zaprojektowano 40 miejsc w garażu podziemnym, w tym 2 dla niepełnosprawnych. Na placu zaaranżowano strefę do parkowania rowerów. W garażu jest możliwość połączenia się z częścią podziemną Gmach Głównego.
Projektowany budynek wpisuje się w przestrzeń między Gmachem Głównym Muzeum Narodowego a DS Żaczek.
Koncepcja proponuje smukłą bryłę budynku o podobnej wysokości jak Gmach Główny. Plan bryły zwęża się wgłąb działki tworząc „otwarcie” na budynek Gmachu Głównego. Poprzez „otwarcie” następuje wciągnięcie istniejącego placu w przestrzeń pomiędzy Gmachem Głównym a nowym Muzeum. Powstały plac ożywi przestrzeń pomiędzy budynkami i stworzy ogólnodostępne przyjazne miejsce rekreacji w zieleni oraz miejsce dla plenerowych wystaw młodych twórców. Zamysł ten wspomaga kawiarnia w formie parterowego pawilonu zlokalizowanego wzdłuż wschodniego boku budynku, jednocześnie umożliwiając jej funkcjonowanie niezależnie od Muzeum. Na dachu kawiarni zaprojektowano taras, który jest dostępny z placu za pomocą zabiegowego biegu schodowego. Taras stanowi dodatkową atrakcję dla osób niezainteresowanych zwiedzaniem.
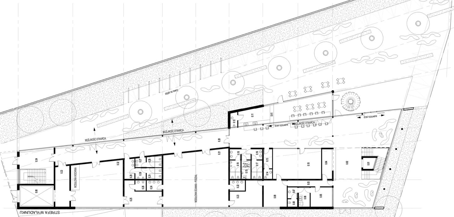
Wejście główne zaprojektowano od strony placu, w podcieniu pawilonu kawiarni. Strefę wejściową charakteryzuje hol, który przebiega przez wszystkie kondygnacje muzeum aż do poziomu kawiarni zaprojektowanej na ostatniej kondygnacji. Z kawiarni prowadzi wyjście na dach, na którym zaprojektowano Ogród Wyspiańskiego z aranżacją zieleni charakterystycznej dla twórczości Wyspiańskiego. W ogrodzie możliwe będzie organizowanie eventów, wystaw plenerowych czy letnich koncertów oraz przedstawień.
W holu zaprojektowano centralny bieg schodowy wraz z windą, który w czytelny sposób komunikuje kondygnacje Muzeum. Na parterze zaprojektowano m. in. recepcję/informację, sklep muzealny/księgarnię, monitoring, a także, w głębi budynku wydzielone pomieszczenia edukacyjne, do których prowadzi całkowicie przeszklony i otwarty na wewnętrzny plac komunikacyjny, który w okresie letnim poszerzy przestrzeń do zajęć czy prezentacji dzieł młodych artystów. W ten sposób stworzy się integralna część edukacyjna Muzeum, czytelnie skomunikowana ze strefą obsługi zwiedzających w holu głównym i bezpośrednio powiązana z ogrodem między budynkami. Z holu ku górze rozpościera się wgląd na antresole poszczególnych kondygnacji, które prowadzą do sal ekspozycyjnych.
Sale ekspozycji stałej zaprojektowano na piętrach od 1 do 4, w układzie podłużnym, bez dostępu światła dziennego. W centralnej części zaprojektowano ekspozycję witrażu Bóg Ojciec, z uwagi na wymiary witrażu zaprojektowano wewnętrzne atrium przebiegające przez 1, 2 i 3 piętro. Umożliwi to oglądanie eksponatu oraz witraży franciszkańskich z różnych poziomów oraz perspektyw. Poza tym sale wystaw zaprojektowano jako jednoprzestrzenne bez słupów czy podpór. W salach, na poszczególnych poziomach zaproponowano wydzielone boksy na wystawy czasowe, ich lekka i mobilna konstrukcja pozwoli na elastyczne i zmienne aranżowanie wystaw, a także ich czasowe wyłączenie z programu zwiedzania.
Z każdego poziomu ekspozycji prowadzi wyjście w kierunku północnym na zewnątrz do ewakuacyjnej klatki schodowej oraz, przede wszystkim, do rampy przebiegającej wzdłuż wschodniego boku budynku.
Koncepcja budynku Muzeum opiera się na zasadzie box in box, tj. kubika mieszczącego sale muzealne umieszczonego w przeszklonym boksie z okalającą funkcją komunikacyjną. Ściany boksu wystawowego
w zamierzeniu będą pokryte zielenią i stworzą Wertykalny Ogród Wyspiańskiego, który będzie można podziwiać poruszając się rampą. Rampa umożliwi również widok z różnych perspektyw i poziomów na elewację zachodnią Gmachu Głównego oraz pobliskiego otoczenia. Przeszklona elewacja budynku
wraz z widokiem na Wertykalny Ogród Wyspiańskiego stanowi dodatkową atrakcję urozmaicającą zwiedzanie Muzeum. Dla widzów dysponujących mniejszą ilością czasu wewnątrz bloku wystawowego zaprojektowano schody umożliwiające skróconą komunikację pionową przez wszystkie poziomy, bez wychodzenia z przestrzeni wystawowej. Dla komunikacji pionowej niepełnosprawnych służyć będzie winda w holu głównym.
Transport eksponatów pomiędzy poziomami zapewni wielkogabarytowa winda przelotowa zaprojektowana w północnej części sal wystaw. Jej lokalizacja jest również dogodna dla pomieszczeń części edukacyjnej.
Jako dopełnienie drogi zwiedzającego na ostatniej kondygnacji zaprojektowano przeszkloną kawiarnię z widokiem na sąsiednie budynki i przestrzenie oraz wyjściem na dach, na którym zaaranżowano Ogród Wyspiańskiego z charakterystyczną roślinnością. W ten sposób powstała atrakcyjna zielona przestrzeń otwarta niezależnie od funkcjonowania Muzeum (możliwość wjazdu zaprogramowaną windą wyłącznie na ostatnią kondygnację).
Architektura budynku stanowi dopełnienie przestrzeni i wpisuje się w pierzeję muzealną. Zaproponowano powściągliwą formę, która poprzez ograniczony dobór materiałów stanowić będzie tło dla twórczości Wyspiańskiego. Lekka przeszklona bryła tworzy ekran dla ścian Wertykalnego Ogrodu Wyspiańskiego. Hol przebiegający przez kondygnacje wystawowe ma zachęcić do odwiedzenia Muzeum, a przeszklenia ukazują przyjazną logikę komunikacji. Wybrano drogę kontynuacji, a dyscyplina języka architektury, skromność formalna tworzy współczesne dopełnienie i pozwala osiągnąć spójny, ponadczasowy krajobraz architektoniczny, charakterystyczny dla sąsiednich budynków Kwartału Muzealnego. Dopełnieniem zdyscyplinowanej formy są rozwiązania materiałowe: szlifowany beton architektoniczny ścian, podłóg, słupów, szkło bezprofilowe elewacji od strony wejścia i od strony Gmachu Głównego nie zakłócą widoku roślinności wewnętrznego Wertykalnego Ogrodu Wyspiańskiego. Mocne zaakcentowanie zieleni wpisuje się w oczekiwany przez Zamawiającego odbiór społeczny budynku przyjaznego i inspirującego do interakcji oraz relaksu w komfortowym zielonym środowisku.


















